Trước khi những viên gạch đầu tiên được đặt xuống, bản vẽ nhà chính là linh hồn định hình toàn bộ công trình. Nó không chỉ là những nét vẽ khô khan trên giấy, mà là “tư duy kiến trúc” được số hóa – nơi mọi đường nét, ánh sáng, vật liệu và cảm xúc sống được mô phỏng chính xác. Với 3A Signature, bản vẽ chính là bước khởi đầu cho hành trình biến giấc mơ biệt thự thành hiện thực – một bản nhạc mở đầu cho cả hành trình kiến tạo không gian sống.
Bản Vẽ Nhà – Nền Móng Của Mọi Quyết Định Xây Dựng
Khi bắt đầu xây biệt thự, hầu hết gia chủ đều háo hức chọn phong cách, màu sơn, hay vật liệu cao cấp. Nhưng bản vẽ nhà mới là thứ cần được ưu tiên hàng đầu.
Một bản vẽ hoàn chỉnh giúp:
- Định hình rõ diện mạo kiến trúc và công năng từng khu vực.
- Tối ưu chi phí vật liệu, nhân công và thời gian thi công.
- Tránh sai sót khi triển khai thực tế.
Nói cách khác, bản vẽ nhà là chiếc “bản đồ tổng thể” để mọi kỹ sư, thợ xây, và kiến trúc sư cùng hiểu chung một ngôn ngữ. Nếu ví biệt thự như một bản giao hưởng, thì bản vẽ chính là bản nhạc nền, nơi mọi nốt nhạc – từ ánh sáng, gió trời, đến vật liệu – được sắp đặt hài hòa trước khi công trình cất lên hình hài.

Bản Vẽ Nhà Không Chỉ Là Kỹ Thuật – Mà Là Cảm Xúc Sống
Nhiều người vẫn nghĩ bản vẽ nhà chỉ là công cụ kỹ thuật khô khan. Nhưng với các kiến trúc sư tại 3A Signature, mỗi bản vẽ là một “tác phẩm sống” – nơi cảm xúc và công năng được đan xen tinh tế.
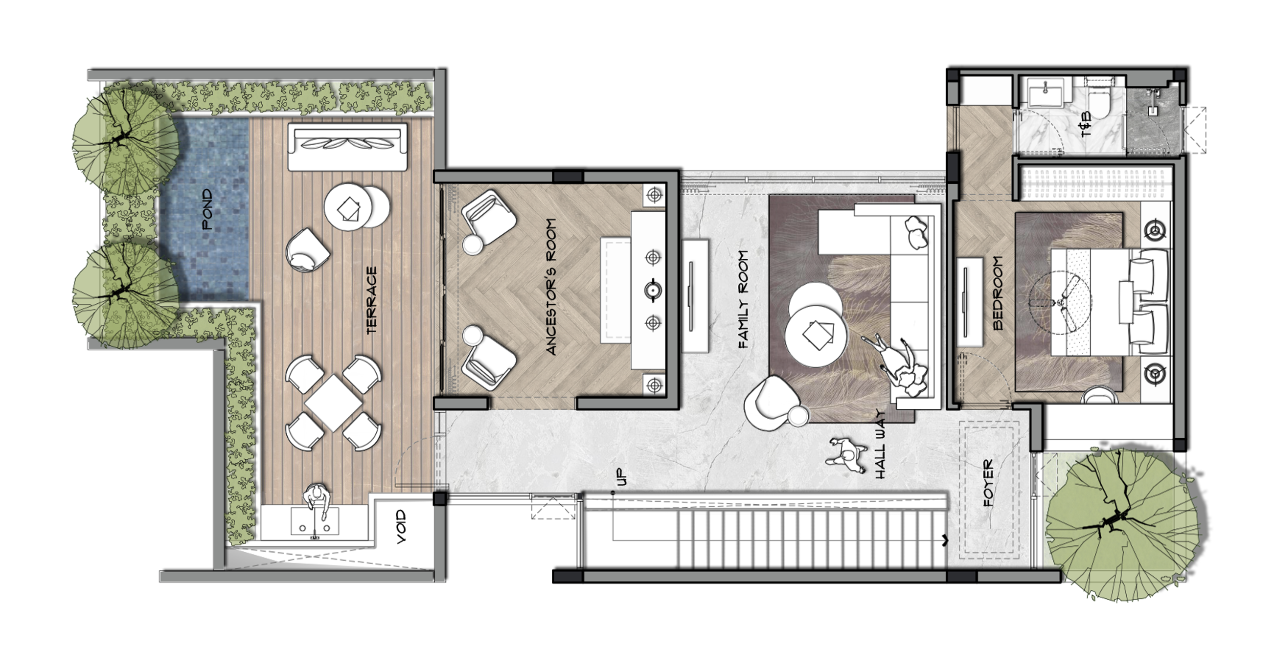
Một phòng khách không chỉ được bố trí theo diện tích, mà theo “dòng chảy cảm xúc”: hướng ánh sáng rọi vào, góc nhìn ra sân vườn, tiếng gió qua lam gỗ. Một phòng ngủ không chỉ có giường và tủ, mà là nơi tái tạo năng lượng – được thiết kế dựa trên nhịp sinh học và thói quen riêng của gia chủ.
Đó là lý do tại 3A Signature, bản vẽ luôn được “may đo” cho từng người. Không có hai bản vẽ nào giống nhau, vì không có hai gia chủ nào giống nhau.

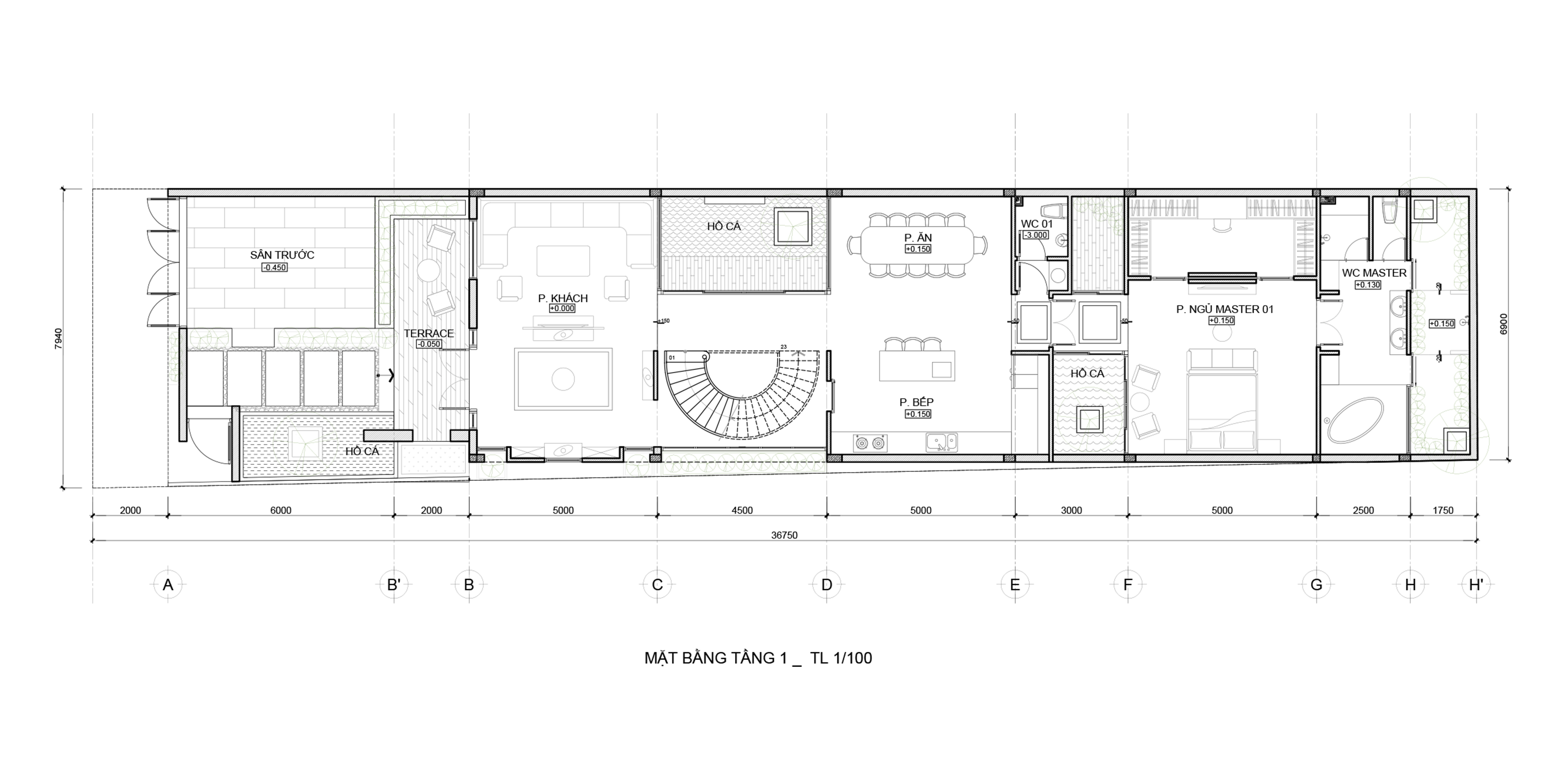
Cấu Trúc Của Một Bản Vẽ Hoàn Chỉnh Khi Xây Biệt Thự
Một bản vẽ nhà hoàn chỉnh thường bao gồm ba phần chính:
1. Bản Vẽ Kiến Trúc
Thể hiện hình khối, tỷ lệ, phong cách và thẩm mỹ tổng thể. Đây là phần giúp gia chủ “thấy” được ngôi nhà của mình trước khi xây – từng bậc thang, lam gỗ, mái ngói Tropical hay cửa kính đón gió.
2. Bản Vẽ Kết Cấu
Đảm bảo độ an toàn, bền vững của công trình. Mọi chi tiết thép, móng, dầm, cột đều được tính toán chính xác, giúp công trình đứng vững với thời gian.
3. Bản Vẽ M&E (Điện – Nước – Điều Hòa)
Là “hệ thần kinh” của ngôi nhà. Nếu không được tính toán hợp lý, công trình dễ gặp lỗi như dây điện chồng chéo, đường ống khó bảo trì. Một bản vẽ M&E tốt giúp biệt thự vận hành mượt mà, tiết kiệm năng lượng và dễ bảo trì.
Vì Sao Bản Vẽ Nhà Giúp Tiết Kiệm Chi Phí Và Thời Gian?
Có thể bạn không tin, nhưng một bản vẽ chi tiết giúp tiết kiệm đến 20% tổng chi phí xây dựng.
Lý do rất đơn giản:
- Dự toán chính xác: Biết rõ khối lượng vật tư cần dùng, tránh lãng phí.
- Giảm sai sót thi công: Mọi chi tiết đều có bản vẽ hướng dẫn, hạn chế phải sửa chữa lại.
- Rút ngắn thời gian thi công: Các đội thợ chỉ việc thực hiện theo kế hoạch rõ ràng.
Ngược lại, nếu xây mà “chưa có bản vẽ nhà hoàn chỉnh”, mọi quyết định đều cảm tính. Thợ xây tự phán đoán, kỹ sư phải điều chỉnh liên tục, khiến công trình đội chi phí, kéo dài tiến độ và đôi khi đánh mất tinh thần thiết kế ban đầu.

Khi Bản Vẽ Nhà Trở Thành Tác Phẩm Nghệ Thuật
Ở 3A Signature, mỗi bản vẽ không chỉ thể hiện kỹ thuật, mà còn là ngôn ngữ kể chuyện bằng đường nét. Các kiến trúc sư của chúng tôi dành nhiều thời gian để nghiên cứu hướng gió, ánh sáng, tỷ lệ con người, đến từng chi tiết nhỏ như lam gỗ hay bậc thềm.
Bản vẽ không chỉ trả lời câu hỏi “ngôi nhà sẽ trông thế nào”, mà còn kể lại hành trình “gia chủ sẽ sống ra sao trong ngôi nhà ấy”. Khi bản vẽ chạm đến cảm xúc – đó là lúc kiến trúc thật sự bắt đầu.

Vai Trò Của Kiến Trúc Sư Trong Việc Lên Bản Vẽ Nhà
Một kiến trúc sư giỏi không chỉ biết vẽ, mà biết “lắng nghe”.
Họ không bắt đầu bằng diện tích hay chi phí, mà bằng câu hỏi:
“Anh chị muốn cảm xúc gì khi bước vào ngôi nhà của mình?”
Với câu hỏi ấy, bản vẽ nhà dần được hình thành như một câu chuyện riêng, phản ánh phong cách sống, nghề nghiệp, và thói quen của chủ nhân. Đó là lý do tại 3A Signature, mỗi bản vẽ đều được thực hiện qua nhiều buổi trao đổi, mô phỏng 3D, thậm chí trải nghiệm VR – để gia chủ thực sự “bước vào” ngôi nhà tương lai trước khi xây dựng.

Dấu Ấn 3A Signature Trong Mỗi Bản Vẽ Nhà Biệt Thự
Điều làm nên sự khác biệt của 3A Signature không chỉ nằm ở kỹ thuật, mà ở triết lý “Con người – Thiên nhiên – Kiến trúc”.
Mỗi bản vẽ nhà biệt thự là sự hòa quyện của 3 yếu tố:
- Con người: hiểu cá tính và lối sống của gia chủ.
- Thiên nhiên: tận dụng ánh sáng, gió, mặt nước và cây xanh để tạo vi khí hậu lý tưởng.
- Kiến trúc: kết hợp công năng và nghệ thuật, hướng đến phong cách Modern Tropical sang trọng, tinh tế và bền vững.
Khi xem bản vẽ của 3A Signature, bạn không chỉ nhìn thấy tường, cửa hay mái – mà thấy cả nhịp sống, cảm xúc và hơi thở của chính mình trong đó.
Kết Luận:
Dù công trình có quy mô nhỏ hay lớn, bản vẽ nhà luôn là “nền móng” cho mọi quyết định. Nó giúp bạn hình dung rõ không gian sống, kiểm soát chi phí, và quan trọng hơn – gìn giữ tinh thần ban đầu của ngôi nhà.
Với 3A Signature, mỗi bản vẽ là một hành trình đồng sáng tạo cùng gia chủ – nơi cảm xúc, ánh sáng và vật liệu được đan kết tinh tế để tạo nên biệt thự độc bản, mang dấu ấn riêng. Nếu bạn đang ấp ủ kế hoạch xây biệt thự trong mơ, hãy bắt đầu từ bản vẽ – bởi đó chính là bước quan trọng nhất để biến ước mơ thành hiện thực cùng 3A Signature.



