Khi chuẩn bị xây nhà hay biệt thự, rất nhiều gia chủ bắt đầu bằng câu hỏi tưởng chừng đơn giản: diện tích sàn là gì và cách tính diện tích sàn như thế nào cho đúng? Trên thực tế, đây lại là khái niệm dễ gây nhầm lẫn nhất, kéo theo hàng loạt hệ quả liên quan đến hồ sơ pháp lý, chi phí xây dựng và cả quy mô không gian sống về sau.
Tại 3A Signature, chúng tôi luôn xem việc hiểu đúng cách tính diện tích sàn là bước khởi đầu quan trọng, giúp gia chủ kiểm soát công trình một cách chủ động và minh bạch ngay từ đầu.
Diện Tích Sàn Là Gì?
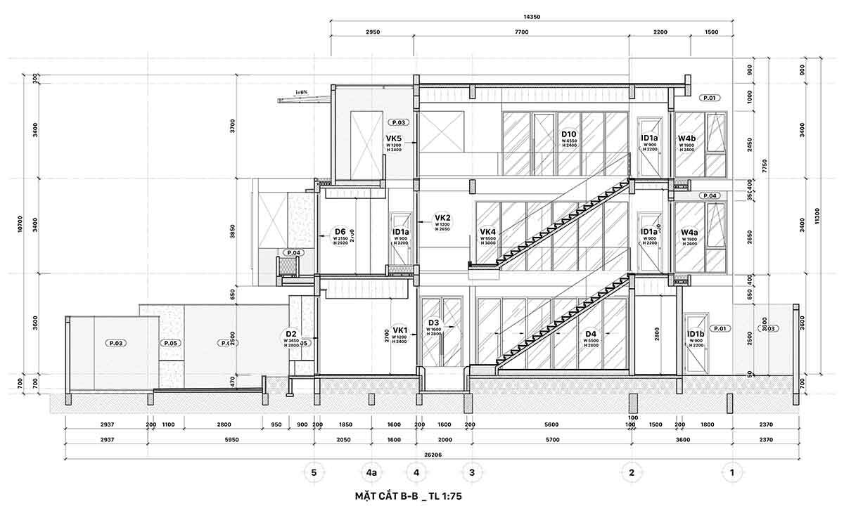
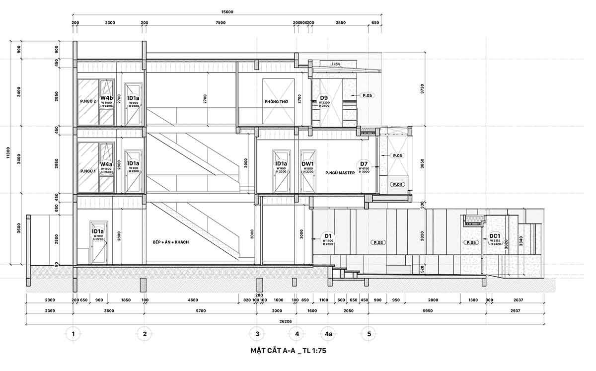
Trong lĩnh vực xây dựng, diện tích sàn (hay còn gọi là diện tích mặt sàn xây dựng) được hiểu là tổng diện tích mặt bằng của tất cả các tầng trong một công trình. Phần diện tích này được tính theo mép ngoài tường bao và bao gồm cả những khu vực như ban công, hành lang, tầng tum, tầng kỹ thuật, tầng áp mái, tầng hầm hoặc nửa hầm nếu có.
Khác với suy nghĩ phổ biến rằng diện tích sàn chỉ là phần “ở được”, trên thực tế, cách tính diện tích sàn luôn bao hàm cả những không gian kỹ thuật và phụ trợ. Đây chính là lý do vì sao diện tích sàn thường lớn hơn cảm nhận sử dụng thực tế của gia chủ.

Vai Trò Của Diện Tích Sàn Trong Xây Dựng Nhà Ở
Diện tích sàn không chỉ là một con số kỹ thuật. Nó là cơ sở để lập hồ sơ xin phép xây dựng, xác định quy mô công trình và dự toán chi phí thi công. Trong nhiều trường hợp, chỉ cần sai lệch nhỏ khi áp dụng cách tính diện tích sàn, hồ sơ có thể bị điều chỉnh hoặc chi phí xây dựng tăng lên đáng kể.
Ngoài ra, diện tích sàn còn được dùng làm căn cứ trong thiết kế nội thất, bàn giao công trình và định giá bất động sản. Vì vậy, hiểu đúng ngay từ đầu giúp gia chủ tránh được những rủi ro không đáng có trong suốt quá trình xây dựng.

Cách Tính Tổng Diện Tích Sàn Xây Dựng Phổ Biến Hiện Nay
Công Thức Tính Diện Tích Sàn Các Tầng Sử Dụng
Đối với phần diện tích sàn sử dụng chính của ngôi nhà, cách tính tương đối đơn giản và rõ ràng:
Diện tích sàn tầng = Chiều dài sàn × Chiều rộng sàn (tính theo mép ngoài tường bao)
Tổng diện tích sàn sử dụng sẽ bằng tổng diện tích sàn của tất cả các tầng, bao gồm tầng trệt, các tầng lầu và tầng tum (nếu có).
Ví dụ, một ngôi nhà có:
- Diện tích tầng trệt: 100m²
- Diện tích lầu 1: 100m²
- Diện tích lầu 2: 100m²
→ Tổng diện tích sàn sử dụng = 300m²
Đây là phần chiếm tỷ trọng lớn nhất trong cách tính diện tích sàn và thường được tính 100% diện tích.
Cách Tính Diện Tích Sàn Phần Không Gian Đi Kèm
Ngoài phần diện tích sử dụng chính, cách tính diện tích sàn còn bao gồm các khu vực đi kèm như ban công, hành lang, cầu thang, giếng trời hoặc logia. Những khu vực này thường được tính toàn bộ hoặc theo tỷ lệ nhất định, tùy thuộc vào quy định và đặc điểm thiết kế cụ thể của từng công trình.
Việc xác định rõ các khu vực được tính vào diện tích sàn giúp gia chủ tránh nhầm lẫn giữa “diện tích xây dựng” và “diện tích sử dụng”.
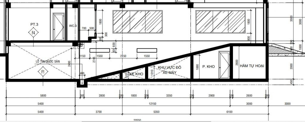
Cách Tính Diện Tích Sàn Phần Móng Và Tầng Hầm
Công Thức Tính Diện Tích Sàn Phần Móng
Phần móng không được tính trực tiếp theo diện tích thực, mà được quy đổi theo tỷ lệ phần trăm so với diện tích sàn tầng trệt.
Diện tích sàn móng = Diện tích sàn tầng trệt × Tỷ lệ quy đổi móng
Tỷ lệ quy đổi phổ biến:
- Móng đơn: khoảng 20 – 25%
- Móng băng, móng cọc: khoảng 30 – 60% (tùy kết cấu và địa chất)
Việc xác định đúng loại móng là yếu tố quan trọng trong cách tính diện tích sàn, bởi nó ảnh hưởng trực tiếp đến tổng chi phí xây dựng.
Công Thức Tính Diện Tích Sàn Tầng Hầm
Tầng hầm được tính theo hệ số quy đổi, phụ thuộc vào độ sâu so với cốt vỉa hè.
Diện tích sàn tầng hầm = Diện tích hầm thực tế × Hệ số quy đổi
Hệ số thường gặp:
- Độ sâu 1 – 1,5m: hệ số ~ 150%
- Độ sâu 1,5 – 2m: hệ số ~ 170%
- Độ sâu trên 2m: hệ số ~ 200%
Trong thực tế, đây là phần phức tạp nhất của cách tính diện tích sàn, thường cần sự xác nhận từ đơn vị thiết kế và cơ quan quản lý xây dựng địa phương.

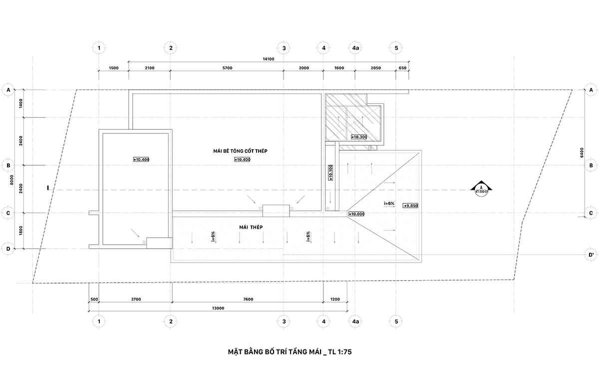
Công Thức Tính Diện Tích Sàn Phần Mái Và Sân Thượng
Công Thức Tính Diện Tích Sàn Mái
Diện tích sàn mái = Diện tích mái thực tế × Tỷ lệ quy đổi theo loại mái
Tỷ lệ quy đổi thay đổi tùy vật liệu và mức độ sử dụng:
- Mái bê tông cốt thép: khoảng 50%
- Mái bê tông lợp ngói: khoảng 85 – 100%
- Mái tôn: khoảng 30%

Công Thức Tính Diện Tích Sàn Sân Thượng
Diện tích sàn sân thượng = Diện tích sàn tầng dưới × Tỷ lệ quy đổi
- Không mái che: khoảng 50%
- Có mái che: khoảng 75%
- Có mái + tường bao hoặc lam cố định: có thể tính 100%
Các tỷ lệ này cần được áp dụng nhất quán khi thực hiện cách tính diện tích sàn cho hồ sơ và dự toán.
Phân Biệt Diện Tích Sàn Và Diện Tích Xây Dựng
Rất nhiều gia chủ nhầm lẫn giữa hai khái niệm này. Diện tích sàn là tổng diện tích mặt sàn của tất cả các tầng, trong khi diện tích xây dựng thường được dùng để tính mật độ xây dựng và chi phí thi công, bao gồm cả diện tích sàn và các phần quy đổi như móng, mái, tầng hầm.
Hiểu rõ sự khác biệt này giúp gia chủ áp dụng cách tính diện tích sàn đúng mục đích, tránh nhầm lẫn khi làm việc với cơ quan quản lý hoặc nhà thầu.
Kết Luận
Hiểu đúng cách tính diện tích sàn là bước nền tảng để xây dựng một công trình chuẩn mực, minh bạch và bền vững. Khi diện tích sàn được xác định chính xác ngay từ đầu, gia chủ sẽ chủ động hơn về chi phí, pháp lý và chất lượng không gian sống về sau.
Với 3A Signature, mỗi công trình không chỉ bắt đầu từ bản vẽ đẹp, mà còn từ những con số được tính đúng – đủ – rõ ràng. Nếu bạn đang chuẩn bị xây nhà hay biệt thự, hãy để 3A Signature đồng hành và tư vấn cách tính diện tích sàn phù hợp nhất cho nhu cầu và giá trị lâu dài của bạn.


